服务热线:133 6655 6600
发布内容
当前位置: 现代供热网 技术交流 正文

472㎡机房,40个小时完成组装!首个地源热泵装配式机房惊艳亮相!视频来看施工全过程

77 2020-10-31
建发改040项目位于南京建邺区,是建邺区首批重点建设的“四新”行动项目,将引进人工智能、研发机构、双创平台等企业,全力打造人工智能等领域创新产业集群,成为立足建邺辐射南京的科研产业生态集群项目,同时也是目前中建八局三公司安装分公司独立承接面积最大、中标价最高、涵盖专业最全的公共建筑。

项目C1栋地源热泵制冷机房面积共472㎡,2台螺杆机组,406片法兰,8台离心水泵,3260套螺栓,153只阀门,仅用40个小时内就完成了组装,下面就通过视频来看一看机房施工的全过程吧!



1、深化设计阶段(BIM+4D技术+物联网技术应用)

利用3D激光全站扫描仪对机房结构及建筑进行全方位的精确扫描测量,误差为±1mm,根据测量的点云数据利用天宝软件测量各项建模用数据,修正模型尺寸,确保BIM模型的精度。
现场实测实量
BIM模型构建


3D扫描数据建立建筑模型


建立设备BIM族库,排布机房设备位置


根据管综排布,优化管道路由,绘制机房全专业管道模型


根据支吊架受力计算,结合管线路由情况,
确定支架安全形式及位置


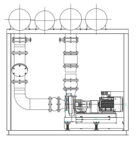
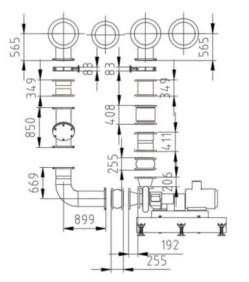
冷冻水循环泵模块

冷确水循环泵模块

主机前段模块

建立机房漫游模型,实景观测机房整体布置效果

2、工厂化预制

工厂预制生产前,项目技术负责人对出具的加工图纸向技术工人进行技术交底,让技术工人了解项目的总体工程量和生产周期,管道的总体布置和作用,关键工序的操作方法和注意事项等,管件在加工预制中的除锈、切割下料、组队、焊接、预装、气压试验等各个工序应严格把控,保证预制加工的精度。
生产图绘制
管材下料
组对焊接
防腐与试装

3、物料运输管理

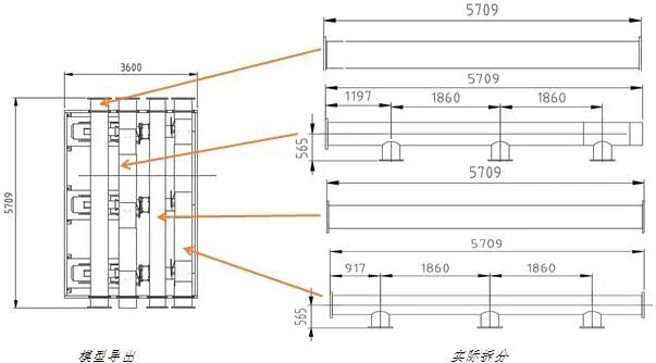
首先根据装配模块大小、现场布局,同时综合考虑车辆空间使用效率最大化进行装运;在发货前做好成品保护,利用拉伸膜、草绳对构件宜碰撞位置进行包装;最后利用BIM技术,进行预制装配单元和预制管组的装车运输模拟,合理摆放预制成品构件,充分利用运输车的空间,最大限度提升运输效率。下图为装车模拟与实际装车。




热线电话
133 6655 6600
热线电话 微信咨询
回到顶部 回到首页