服务热线:133 6655 6600
发布内容
当前位置: 现代供热网 技术交流 正文

暖通工程机房设备该如何配置?

82 2018-06-01

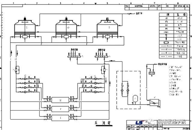
在制冷机工作过程中,需要其它的辅助设备来共同完成制冷的过程,其中,机房主要设备有主机、冷却塔、冷冻泵、冷却泵、电子水处理、软化水装置、定压装置、过滤器、分、集水器、换热器等设备,机房设备的布置如下图所示。

图片

1、主机

1.主机台数的配置

在任何系统中采用单台机组的可靠性总是差的。除了己有建筑物改造受机房面积限制别无选择外,严格来说不应该配置单台机组。故障往往发生在使用期间,即使有良好的售后有服务,停机也会影响生产活动。根据负荷大小配置两台或两台以上的机组,不仅增加了系统的可靠性还有利于节能。

a一台机组有故障时,一般尚能满足主要生产场所的空调要求

b 机组的配置负荷一般在大于计算负荷,计算负荷又偏安全,故一台容量会达到最高负荷的60%以上

c 在较大工程中,也可配置两大一小方案,优点是多种组合、节约配套设备的运行费用、解决使用时

间不统一的问题、有利于运行的经济性。

2. 机组制冷供热量的选择(针对直燃机)

在不同地区,冷热负荷之比是不同的,例如东北地区按热负荷选配机组,则机组冷负荷富裕太多;南方地区按冷负荷配备机组,则热负荷未被充分利用,为了处理好这个问题,可采用如下方法:

a 当冷负荷足够,热负荷偏小时,可提供高发加大方案;

b 当热负荷足够,冷负荷偏小时,需按热负荷为依据来选配机组,在热负荷占冷负荷65%以下时,可

考虑选用电动冷水机组补足冷量的方法。

3. 配置不同能源的机型

a 多能源机型有利于可靠运行

b 多能源机型可根据季节、时间段选择机组的开机,有利节约系统运行费用

4.电制冷机组的选择要点

1.为求得供配电的合理,提高供配电效率,必要时应选用高压电动机


图片

二、冷却塔

流量QL=(1.1~1.3)Q1

Q1为样本标定流量(通常为TS=28℃.32~37℃之间循环)

三、冷冻水泵

查相应样本确定冷冻水流量QL和阻力损失h1,由此确定冷冻水泵流量QL=(1.05~1.1)QL

扬程 h=h1+ h2+ h3+ h4

h1为主机阻力损失 (每100m取5m左右阻力损失)

h2为沿程阻力损失 (每100m取2~3m左右阻力损失)

h3为局部阻力损失

h4为其他设备阻力损失

水泵进出口管径由样本可查得


图片

四、冷却水泵

查相应样本确定冷却水流量Q5和阻力损失h5,由此确定冷却水泵流量Qq=(1.05~1.1)Q5

扬程 h=h5+ h6+ h7+ h8+ h9

H5为主机冷凝器阻力损失

H6为沿程阻力损失 (每100m取5m左右阻力损失)

H7为局部阻力损失 (每100m取2~3m左右阻力损失)

H8为冷却塔出口压头阻力损失

H9为其他设备阻力损失

五、软化水装置

按流量进行选择,一般取冷冻水流量的0.5~2%,安装在冷冻水回水管路上

六、定压装置

定压装置分三种 1)膨胀水箱定压

2)变频补水定压

3)稳压罐定压

流量取冷冻水流量的0.5~1%,安装在冷冻水回水管路上。

七、过滤器

在冷冻水、冷却水管路上安装10目网眼的过滤器

九、分、集水器

管径:是冷冻水汇总后总干管的2倍以上;

长度:为各分支数量n的外径d总和,(n*d)×(0.3~0.6)

或者进出水法兰外径之间之和+法兰间距离15cm的总和

热线电话
133 6655 6600
热线电话 微信咨询
回到顶部 回到首页