服务热线:133 6655 6600
发布内容
当前位置: 现代供热网 技术交流 正文

板式换热器的安装、使用与维修

96 2017-06-02

第1节 板式换热器的安装

板式换热器由其结构特点所决定,它的安装比较方便和灵活。以下对板式换热器的额零件组装和系统安装方面需注意的事项加以说明。

一、板式换热器的零件组装

关于板式换热器的零件组装,无论是制造厂向使用单位发运零件,进行现场组装,还是使用单位在检修设备拆开板式换热器后再组装,都必须按照以下顺序进行。 

1、认真阅读随机文件(合格证、材质证、流程图、装配图和装箱清单等)。 

2、检查板片、接管、垫片的材质是否与换热器内介质的耐腐蚀要求相一致。 

3、按图纸检查所有的零件是否齐全,型号、尺寸是否与图纸相符。 

4、将板片的垫片槽擦干净,均匀地涂上粘接剂,粘上垫片,然后把板片整齐地叠放在一起,压上一定的重物。 

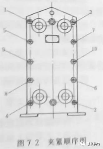
5、按设计的流程图进行组装,并按规定顺序进行夹紧。夹紧时,应先拧紧1、2、3、4号螺母,然后再拧紧5、6、7、8、9、10号螺母。

                 图片

6、液压试验要按单侧分别进行。试验压力为设备设计压力的1.25倍;保压30min,检查所有密封盒焊接部位,均无渗漏为合格。 


二、使用单位的系统安


使用单位的系统安装时指制造厂发至使用单位的设备或使用单位检修好的设备向应用工位上的安装。这种情况应按下面顺序进行。 

1、  将设备放在基础上,固定地脚螺栓。 

2、  检查管道的冷、热介质进出口与设备上的接管是否一致。考虑到检修方便,管道与换热器联接时最好用短节。 

3、  换热器的冷、热介质进出口都应安装温度计和压力表。 


三、换热器零件组装和设备安装时的注意事项


1、  吊装时要注意设备的重心。

2、  向垫片槽粘接垫片时,应确保垫片上和板片的垫片槽内没有砂子、油污、铁屑和焊剂等杂物,以免损坏密封,引起泄露。 

3、  拧紧螺栓时用力要均匀,并不断地测量两压紧板内侧的距离,保证两压紧板间平行度偏差不大于3mm.夹紧到规定尺寸并且达到相应的平行度,以免垫片压偏或滑出垫片槽。同时,一边夹紧一边细查,观察是否有垫片、板片发生错位等现象。 

4、  液压试验的液体一般采用水。水温不应低于5℃.试验时应缓慢升压。试验完成后,适当地松开压紧螺母,放出积水,然后再拧紧螺母,夹紧至原尺寸,待用。 

5、  换热器周围应留有一定的检修空间,其大小与板片的尺寸有关。 

6、  夹紧螺栓上要涂以黄油,有条件时应套上保护管,以免生锈和碰伤螺纹。 

7、  如果泵的出口最大压力大于设备最高使用压力时,需在设备的入口处安装减压阀和安全阀。 

8、  当设备内充满液体、带有压力时,不允许夹紧螺母。



第2节 板式换热器的操作

一、开车操作及注意事项


1、在新工艺管线上使用时,要注意消除管线内的杂物,以免堵塞换热器。 

2、如果用污水作冷却介质,或回收污水的余热,或介质内含有粒状固体物时,要在换热器入口端装上过滤器或除污器,以免堵塞换热器。 

3、冷却水(被加热)温度超过40℃时,应尽可能先进行软化处理,以免换热器结垢,影响传热效果, 

4、检查管线连接是否正确,避免两种介质相混,引起不良后果。 

5、开车前严格检查冷、热介质的进口阀门是否关闭,出口阀门是否开启。 

6、完成上述工作后可开机。开车先启动冷、热介质的泵,慢慢地打开冷介质的进口阀,然后打开热介质的进口阀,使介质缓慢地流入换热器,以免温度过高。

7、检查所有密封面及所有焊缝处有无渗漏等不正常的现象。 

8、缓慢地升温,同时测定和计算是否满足工艺要求。满足后即可进入正常操作。 



二、正常运行及检查


1、要经常检查换热器的所有密封面及焊缝,观察有无渗漏等不正常现象。若发现渗漏,应及时在渗漏处作上记号,待停机后处理。 

2、要定时检查压力表、温度计,观察是否有不正常现象。 

3、停车时先慢慢关闭热、冷介质的进口阀,然后关闭两介质的出口阀。开机时则反之,先打开出口阀,然后缓慢地打开进口阀。 

4、要定期对低压侧介质进行化验,以免有高压侧介质混入。如有混入,说明发生内漏,应停机处理。 


三、停机操作及注意事项


1、停机前必须先停泵,切断电源。 

2、停泵后,先缓慢地关闭热介质进口阀门,再关闭冷介质的进口阀门。最后关闭两介质的出口阀门。

3、如果管线上装有放空阀,应打开。 

4、对温度较高的介质及腐蚀性介质,应尽量使设备放空,以免打开设备时烫伤人和腐蚀设备。


四、常见运行故障的诊断及处理


(一)运行状况偏离工艺要求 

新投产的板式换热器如果达不到工艺要求,应仔细检查原始设计参数、设计计算、组装等是否正确,然后决定是否应增加或者减少换热面积,以及改变流程组合。 

若板式换热器开始运行是正常的,经过一段时间运行后出现偏离工艺要求的情况,如出现出:压力降增大或减小;介质出口温度上升或下降。

处理这种故障的办法是: 

1、检查冷热介质的入口参数与原设计值是否相符。如果不相符,应设法调整到原设计值。若入口参数已改变,无法调整到原设计值,则应重新进行设计计算,决定增减换热面积或更改流程组合。 

2、如果冷、热介质的入口参数与原设计值相符,而出口参数达不到设计值时,则应停机,拆开检查板间有无堵塞或板片结垢等情况,并及时处理。 

图片

(二)板式换热器发生渗漏现象 


由于板式换热器的密封周边较长,板片又较薄,在使用过程中可能会出现渗漏现象。渗漏现象可分为内漏和外漏两种情况.

1、板式换热器的外漏  

这是指板式换热设备内的介质向外部空间的渗漏。这种渗漏现象一般容易发现。引起这种渗漏的主要原因是垫片老化、被腐蚀或板片变形。当发生这种渗漏时,应及时在渗漏部分做上记号,打开设备以更换垫片或板片。 

2、板式换热器的内漏 

这是指换热设备内的两种介质由于某种原因造成高压侧介质向低压侧渗漏。这种渗漏现象一般不易及时发现。引起这种渗漏的主要原因是板片穿孔、裂纹和被腐蚀。发现这种渗漏的方法是要经常对低压侧的介质进行化验,从其组分的变换中加以判断。

这种渗漏的停机检查方法是: 

(1)、拆开板式换热器,清除板片表面上的污垢,擦干后将换热器重新组装起来。在一侧进行压力为0.2~0.3Mpa的水压试验。待另一侧流出水后即停止试验,打开换热器,仔细观察板片的未试压侧,其中湿的板片即为有孔或裂纹的板片。

(2)、在现场也可用透光、着色检查方法,查出废板片。 凡检查出来的废板片和垫片都要进行更换,重新组装后使用。 

(三)板式换热器的板片发生错位 

对于介质流量和压力变化较大、而且又是多程组合、长期使用的板式换热器,容易发生板片错位现象。板片错位后,有时很快就出现外漏;有些虽然不是立即发生外漏,但却是发生渗漏的一种隐患,所以都必须及时处理。 

引起错位的主要原因有:换热器板片变形;板式换热器的密封垫片滑离了垫片槽。处理这种错位现象,应将变形的板片和滑离垫片槽的垫片及时更换。 

(四)现场缺乏检修设备时,板式换热器的简单处理方法 

板式换热器在使用过程中,无论是板片发生变形、裂纹、穿孔,还是垫片发生老化、断裂,都需要及时更换。万一使用现场没有足够的备件,而换热设备既无备用台份,又不能停机时,应进行现场的简便处理。 

现场简便处理的方法是将损坏的板片和发生渗漏的板片成对(A板+B板),如果数量不太多,减少的流道数也不多,组装后可继续使用,对生产影响不会很大。


第3节 板式换热器的维修


板式换热器除了在特殊情况下的检修外,还应进行定期的维修。由于板式换热器拆装方便,维修简单,一般也不用特殊的工具和设备。根据不同的情况可采用不同的方法,如果设备没有发生渗漏,只是传热系统K有所下降,则可不拆开换热器,而用一个闭路系统将除垢液打入设备内循环数小时即可。现场没有这种条件,而且拆开设备后发现结垢不太严重时,可不取下板片而用水直接冲洗,同时用柔软刷子刷洗即可。 


一、正常运行维修


1、需要维修的设备,应按安装顺序逆行拆开换热器。 

2、在石油、化工行业中应用的设备,应按检修周期进行定期维修。 

3、设备内的介质如果是易燃、易爆或腐蚀性较强的介质,至少每年应维修一次。 

4、在其它行业中使用的板式换热器,如果未发生渗漏,最好三年恩能维修一次。 


二、板片的清洗和保护


保持板片的清洁是保持高传热系数的重要条件之一。在板片间,介质是沿着狭窄曲折的流道运动的,即使产生不太厚的垢层,也将引起流道的变换,显著地影响流体的运动,使压降增大、传热系数下降。例如某糖厂在采暖中使用板式换热器,由于二次水没有很好地处理,使用过程中仅两个月就将整个流道堵塞,不能继续运行。 

1、化学清洗法 

这种方法是将一种化学溶液循环地通过换热器,使板片表面的额污垢溶解、排出。此法不需拆开换热器,简化了清洗过程,也减轻了清洗的劳动强度。由于板片波纹能促进清洗液剧烈湍流,有利于垢层溶解,所以化学清洗法是比较理想的方法。 

2、机械(物流)清洗法 

这种方法是将板片拆开后用刷子进行人工洗刷,从而达到清洗板片表面污垢的目的。此法虽然比较直接,但对较坚硬、较厚的垢层,不易清洗干净。 

3、综合清洗法 

对于垢层比较坚硬又较厚的情况,单纯采用上述一种方法都难以清洗干净。综合法是先用化学清洗法软化垢层,再用机械(物理)清洗法除去垢层,以保持板片表面清洁干净。 

4、清洗时的注意事项 

(1)化学清洗时溶液要保持一定的流速,一般0.8-1.2m/s.其目的在于增加溶液的湍流程度。 

(2)对于不同的污垢应采用的化学清洗液。除了经常采用稀释纯碱溶液外,对于水垢可用5%的硝酸溶液。在纯碱生产中生成的垢,可用5%的盐酸溶液。但不得使用对板片产生腐蚀的化学清洗剂。 

(3)机械(物流)清洗时不允许用碳钢刷子刷洗不锈钢板片,以免加速板片的腐蚀。同时不能使板片表面划痕、变形等。 

(4)清洗后的板片要用清水冲洗干净并擦干,放置时应防止板片发生变形。   


三、垫片的特性及其更换


图片

由于板式换热器的应用领域不断扩大,对于不同的介质和工艺有不同的耐温、耐压和耐腐蚀的要求。想用一种“万能的”垫片来适应所有情况,显然是不可能的,而应针对不同情况采用不同材料的垫片。常用的垫片截面形状为六边形。常用的垫片种类有天然橡胶、氯丁橡胶、丁晴橡胶、三元乙丙橡胶、硅橡胶、氟橡胶、石棉纤维板等。   

板式换热器的垫片在使用时如果发生渗漏、断裂、老化等现象,要及时更换。更换应按以下顺序进行。 

1、拆下废旧垫片。注意拆卸时,不得使垫片槽内有划痕。 

2、用丙酮、丁酮或其它酮类溶剂,清除垫片槽内的残胶。 

3、用干净的布或者是棉纱擦净垫片槽和垫片。 

4、将粘接剂均匀地涂在垫片槽内。 

5、把干净的新垫片贴在板上。 

6、贴好垫片的板片要放在平坦、阴凉、通风的地方自然干固4h后才可安装使用。


热线电话
133 6655 6600
热线电话 微信咨询
回到顶部 回到首页