服务热线:133 6655 6600
发布内容
当前位置: 现代供热网 技术交流 正文

换热站设计:原理、方法与案例分析

514 2025-06-14

计:原理、方法与案例分析

                             低碳供热产业                                                                                2025年05月23日 08:55                                                                                                                      

二、换热站的位置选择和规模


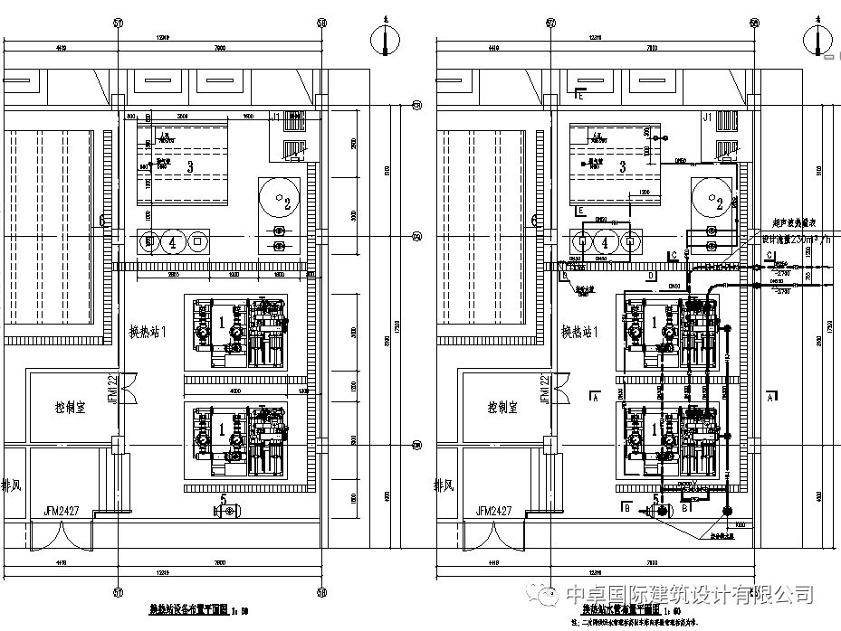
1、换热站的位置选择和规模必须依据城市供热专项规划,做到科学、合理的布局。下图为西安铂悦山工程的一个换热站平面布置,该站设备布局紧凑,占用地下车库面积小,给业主增加了车位数量。

图片

2、换热站应尽量布置在热负荷的中心,减少二次网的投资,同时换热站的规模不宜过大。在城市热力网工程的规划,可研的经济分析时,投资估算只考虑到换热站,没有包括二级网的投资和运行费用,认为在一定的投资规模下,换热站的规模越大,设备 的综合利用率就越高,换热站规模越大,越经济。实际上是换热站规模越大,二级网供热半径越大,循环水泵运行的电耗越大,耗电输热比往往超过规范规定,同时增加大部分分支、末端用户水力失调的可能性,供热的可靠性、安全性无法保证。

图片

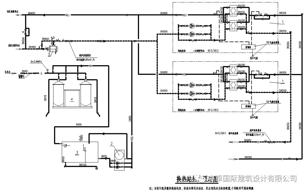
换热站工艺流程简图:

图片
图片

工程实例:西安铂悦山工程,供热面积30万㎡设两个换热站,每个换热站供热面积15万㎡,设于地下一层车库内,换热站经我院多次优化仅占地面积150㎡。下图为换热站内设备选型:

图片

板式换热机组:

图片
图片

1. 根据经验:换热站的规模一般5~15万㎡较合适,二级网供热半径不宜超过500m。

2. 对于采用整体换热机组的换热站,对于暖气片用户单台换热机组的供热规模不宜超过10MW,地板采暖用户不宜超过5MW。

3. 从节约投资和运行费用考虑,应规划建设无人值守的换热站。无人值守换热站可实现对站内一,二次网运行参数的检测,同时通过本地的PLC和远程中控系统对站内的设备进行控制,做到系统运行的适时,快速。(节约人工,自动控制节能)。


换热站工艺流程图

图片
图片

四、循环水泵的合理配备


根据管网水力计算确定循环水泵合理的流量和扬程。水力计算原理如下图:

图片

1)二级网循环水泵的扬程取决于换热器、二次侧阻力损失、最不利管网阻力损失和用户资用压头。

2)换热站应做好规划设计,确定供热范围和规模,进行管网水利计算,确定水泵合理的扬程。

3)循环水泵的流量扬程过大,使水泵运行电耗的增加,也增加了近端用户阀门的节流损失。

4)根据经验:二次网循环水泵的实际扬程大约为15m~35m水柱。

5)为保证循环水泵能够根据热负荷的变化,适时调节循环水量,循环水泵应配备变频控制。

6)应根据运行工况要求确定水泵的配置,避免出现多台水泵并联运行,这样既降低了水泵的工作效率,又增加了运行能耗(水泵特性曲线选择)。

7)当出现水利失调时,不能仅通过增加循环水泵的数量来解决。在实际运行中,应提倡,不同工况下,单台水泵工作的运行模式,同时在水泵选择时,一般选单级立式水泵,并且使水泵的工作点,处于特性曲线的平缓处,且工作点应在高效区,而不是根据流量和扬程简单查取水泵型号。

8)“大流量,小温差”的运行理念在一定程度上,可减轻最不利用户的热力损失,但这样却造成近端用户过热,同时循环水泵运行电耗显著增大。以上理念,比“大温差,小流量,量调节”的供暖方式能耗至少要高出40%左右。

9)对于供热系统的热力失调,应从供热系统本身入手,通过官网的阻力平衡,如增加压力、流量、控制阀等方式解决。

五、补水泵选择

1)二级网系统中补水泵的流量根据系统的补水量,一般正常工况下,为循环水量的2%,事故工况下,为循环水量的4%。

2)采用补水泵定压时,补水泵的扬程由供暖系统的定压点,供热系统的静水压线确定。

3)应根据供热范围内绝大多数用户的建筑物高度和散热设备的承压能力来确定系统的静水压线,这样可以降低补水泵的扬程、能耗、热网运行压力。

4)对于高层建筑可以单独考虑。

5)补水泵定压点的位置对于供热系统的运行的安全性和压力工况的调节有很大影响。小型供热系统定压点一般是循环水泵吸入口回路运行时,热网的动水压线比静水压线高。

6)大型供热系统,由于回路阻力损失大,为了使系统运行中的供回水压力降低,提高系统的安全性和便于调节,通常将系统的定压点设在循环水泵的旁通管上,利用补水泵连续补水定压的方式(在大型供热系统的换热首站,以及地势高差较大的地区采用此方式)。

7)补水泵应在满足正常补水量外,还应满足事故工况下的补水量;一般选择两台水泵并联安装,单位水泵满足正常工况的运行要求,补水泵应考虑变频控制运行。

声明:本站文章图片来源转载仅供参考学习,转载内容合法性不承担保证责任,但将依法配合处理侵权纠纷,转载内容版权归原作者所有,本站已尽力标注来源,若有疏忽请联系更正,如果有侵权请联系我们24小时之内删除13366556600

热线电话
133 6655 6600
热线电话 微信咨询
回到顶部 回到首页